Your First Home
138 Belfast Subdivision, Belfast
Christchurch City
3
2
1
0
1
$738,000*
*The price estimate includes GST and is an indication of the build cost and includes land. It should be used as a rough guide. Refer to the About Pricing page for more information. Images are artist's impression only. Regional variations in products and building requirements may apply.
Listing Code: CN-19379
Download Brochure
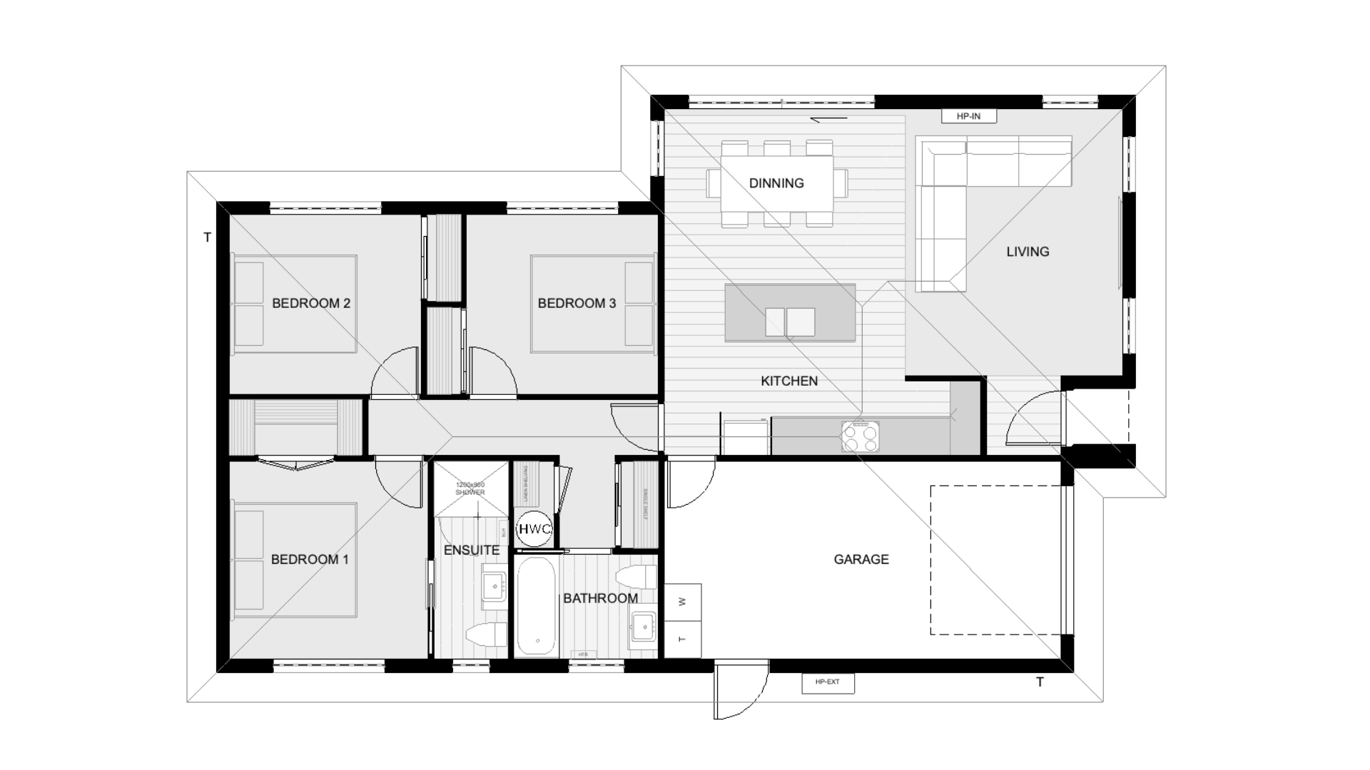
Floor Plan
-
1+
Description
Beautifully designed 3 bedroom home waiting for you to add your personality too so you can get excited about moving into your very own new built home. Package includes custom designed kitchen, Mitsubishi heatpump, letterbox - even a $5000 allowance to spend on landscaping! Call today and have a chat about securing the unique and exciting opportunity. [Titles expected Aug 2026 - Construction will start after this]
Design Specifications
Floor Area121.8 m2
Porches1.4 m2
Total Area123.2 m2
Overall Size
Width (approximate)9.1 m
Length (approximate)14.6 m
Land
Land Area400 m2
Scott Bennett
New Home Consultant
Contact Us
Embed form to be added here.