Park Ridge 3+2 Alert! Home and Income
Lot 71, 69 Little Owl Loop, Park Ridge, Jacks Point
Queenstown-Lakes
5
3
2
0
1
$1,675,000*
*The price estimate includes GST and is an indication of the build cost and includes land. It should be used as a rough guide. Refer to the About Pricing page for more information. Images are artist's impression only. Regional variations in products and building requirements may apply.
Listing Code: QT-19547
Download Brochure
Floor Plan
Description
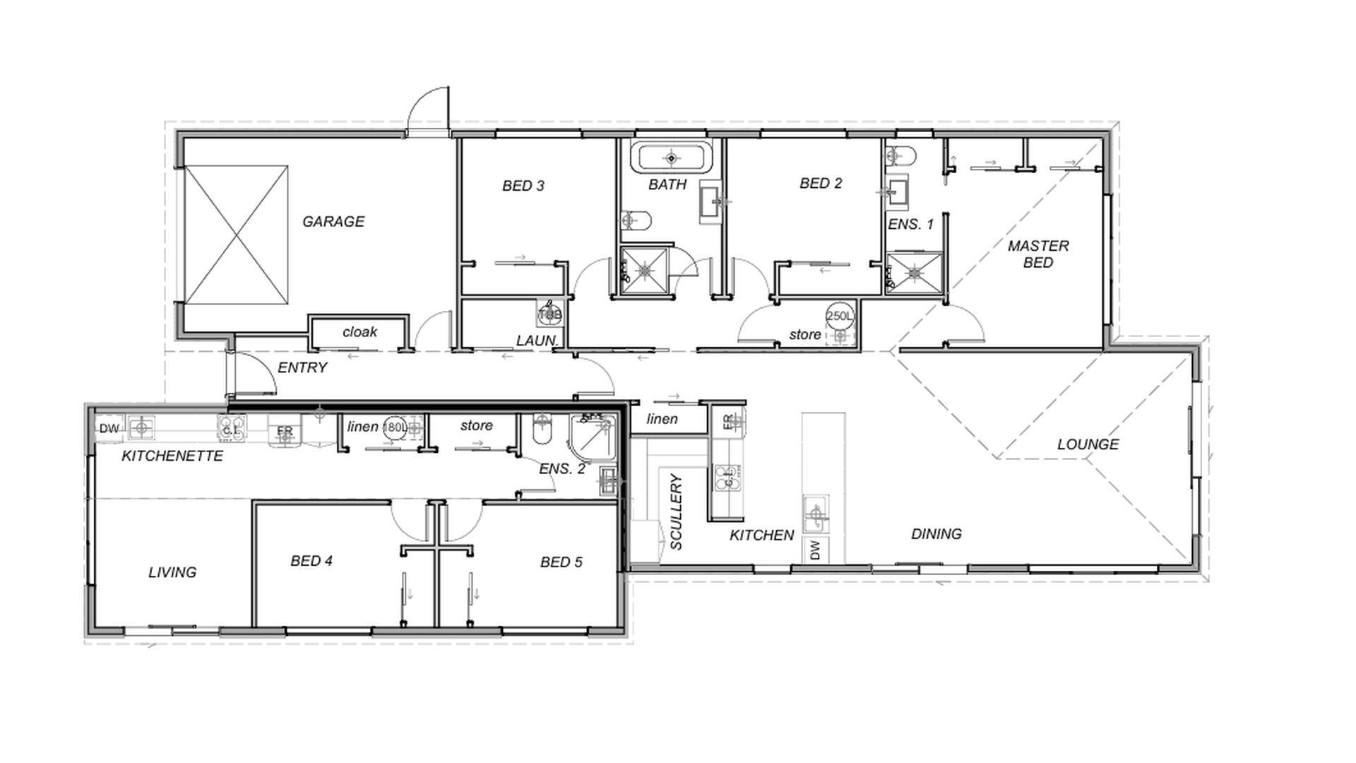
Lot 71 Parkridge, Queenstown – Brand new 3+2 home & income on a 448m² titled section.
Main home (151.45m²) features 3 bedrooms, open-plan living, modern kitchen with scullery, and internal garage. Separate 2-bed flat (52.12m²) with own access – ideal for rental or extended family.
Total floor area 235.75m². A smart investment or flexible living option in a sought-after location.
Design Specifications
Floor Area235.75 m2
Total Area235.75 m2
Overall Size
Width (approximate)10.4 m
Length (approximate)22.99 m
Land
Land Area450 m2