Nature, Design and Lifestyle - Mangawhai Hills
Lot 24 Mangawhai Hills, Mangawhai
Kaipara
4
2.5
1
1
2
$1,928,047*
*The price estimate includes GST and is an indication of the build cost and includes land. It should be used as a rough guide. Refer to the About Pricing page for more information. Images are artist's impression only. Regional variations in products and building requirements may apply.
Listing Code: RN-19230
Download Brochure
Floor Plan
-
1+
Description
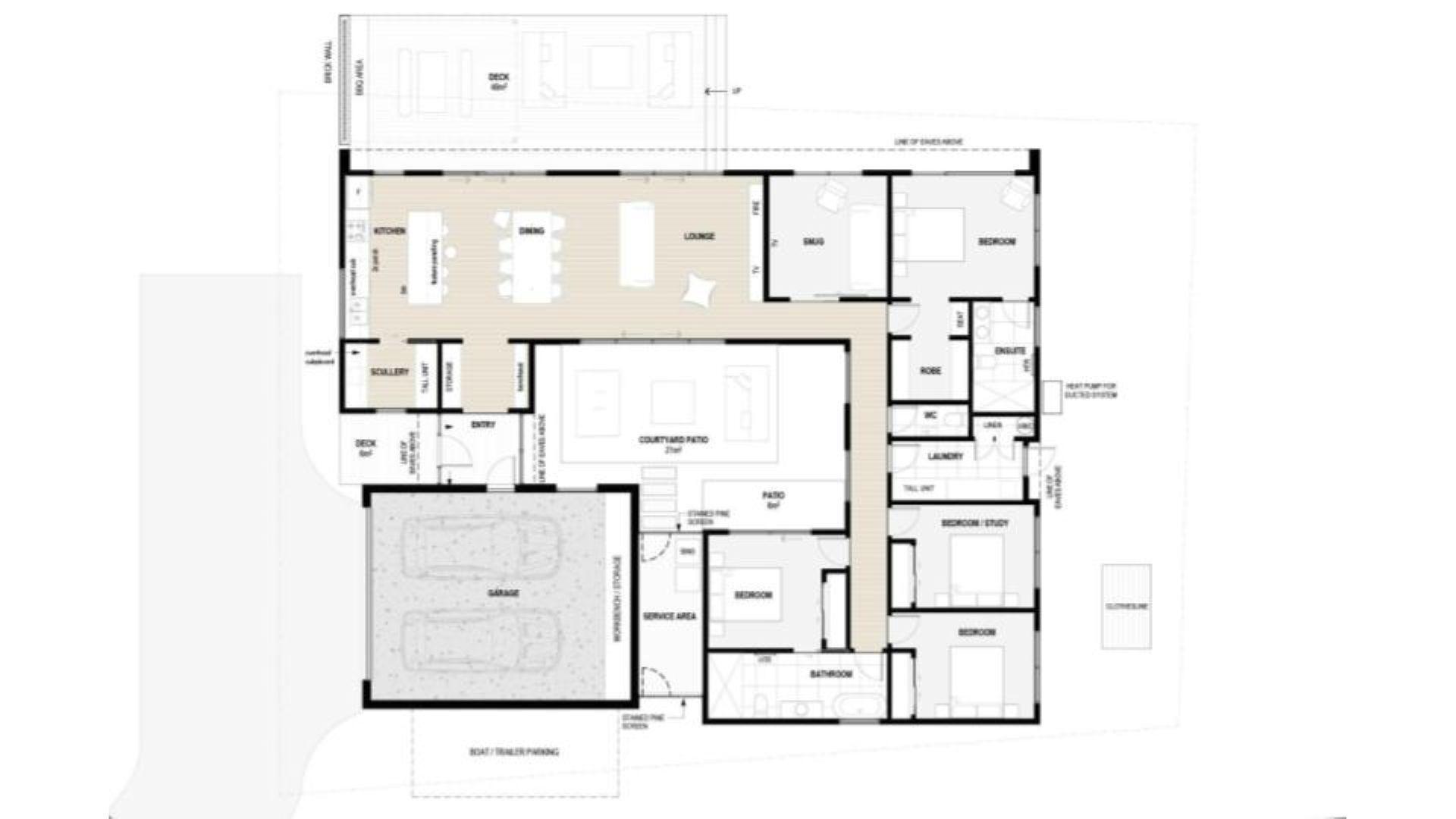
Mangawhai Hills offers a restorative way of living just 95km north of Auckland. Generous sections, native bush tracks, cycling trails and rewilded wetlands create a truly self-sufficient community. This thoughtfully designed, solar-ready home features four spacious bedrooms, two and a half bathrooms, and seamless indoor-outdoor flow with a courtyard patio and pergola off the kitchen. It's perfect for relaxed living and entertaining, moments from beaches, golf and local charm. Enquire today.
Design Specifications
Floor Area243 m2
Total Area243 m2
Overall Size
Width (approximate)20 m
Length (approximate)16.4 m
Land
Land Area1328 m2
Scott Manwaring
New Home Consultant
Contact Us
Embed form to be added here.