Modern Versatility: The Ultimate Lifestyle Blend

11 Te Whata Street, Tuumata Rise, Ruakura
Hamilton
3 2 1 1 1
$896,301*
*The price estimate includes GST and is an indication of the build cost and includes land. It should be used as a rough guide. Refer to the About Pricing page for more information. Images are artist's impression only. Regional variations in products and building requirements may apply.
Listing Code: WE-19389
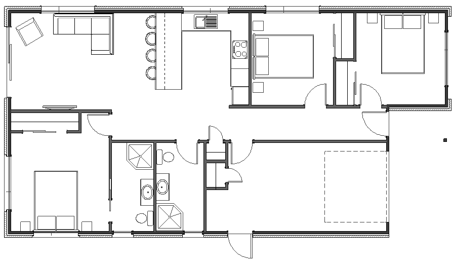
Description
Discover the perfect balance of style and function in this thoughtfully designed 3-bedroom home. Ideal for growing families, downsizers, or young professionals, the layout features a light-filled open-plan kitchen with a breakfast bar that flows effortlessly into the living zone. Retreat to the master suite with its private ensuite, while the additional bedrooms offer flexibility for guests or a home office. Located minutes from Hamilton City and the motorway, it’s the ultimate lock-and-leave.
Design Specifications
Floor Area104 m2
Porches2.4 m2
Total Area106.4 m2
Overall Size
Width (approximate)7.55 m
Length (approximate)14.85 m
Land
Land Area480 m2
Nick Moore
New Home Consultant

Recently Viewed