Modern Pavilion Home on Full Hectare
Lot 2, 197 Nixon Road, Taupaki
Rodney
4
2
2
0
2
$1,744,975*
*The price estimate includes GST and is an indication of the build cost and includes land. It should be used as a rough guide. Refer to the About Pricing page for more information. Images are artist's impression only. Regional variations in products and building requirements may apply.
Listing Code: RW-19655
Download Brochure
Floor Plan
-
1+
Description
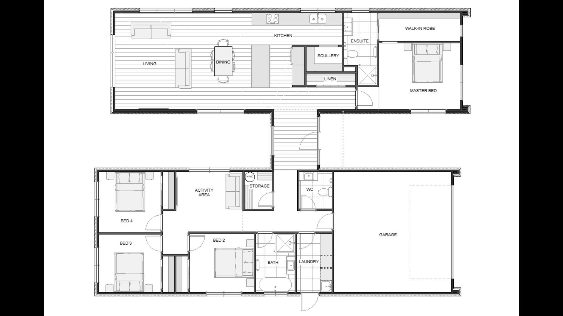
Modern pavilion living on one hectare in Taupaki. This 219.5m2 pavilion home offers four bedrooms, a kids activity area, separate laundry and excellent storage. A private master suite features a large walk-in wardrobe and ensuite. Open plan living with kitchen and scullery flows seamlessly outdoors, creating a strong connection to nature. All usable land with space to create your ideal lifestyle, just minutes to Kumeu, Westgate and Muriwai Beach.
Design Specifications
Floor Area219.5 m2
Porches3 m2
Total Area222.5 m2
Overall Size
Width (approximate)20 m
Length (approximate)14.53 m
Land
Land Area10000 m2
Kathryn Cumberland
New Home Consultant
Contact Us
Embed form to be added here.