Modern Living with Room to Grow
484/29 Musselwhite Terrace, Greenhill Park, Chartwell
Hamilton
4
2.5
1
0
2
$1,135,000*
*The price estimate includes GST and is an indication of the build cost and includes land. It should be used as a rough guide. Refer to the About Pricing page for more information. Images are artist's impression only. Regional variations in products and building requirements may apply.
Listing Code: WW-18975
Download Brochure
Floor Plan
Description
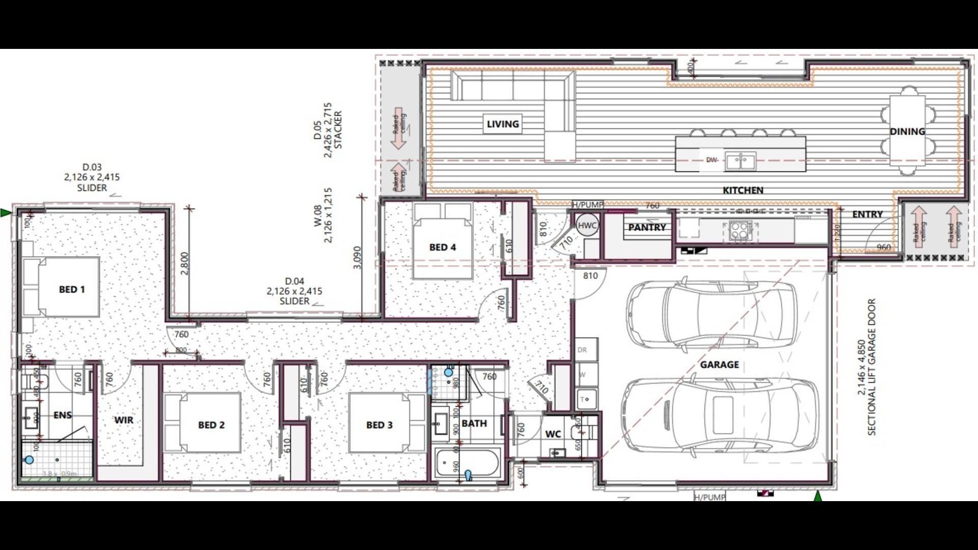
This custom plan based on the Tua design features 4 bedrooms, 2.5 bathrooms and an impressive high-stud living area that enhances the sense of space and light. The open plan kitchen, dining and lounge create a warm family hub, while the master suite includes a walk-in wardrobe and ensuite. A double garage provides excellent practicality, offering a premium home in Greenhill Park.
Design Specifications
Floor Area185.02 m2
Total Area185.02 m2
Overall Size
Width (approximate)10870 m
Length (approximate)24350 m
Land
Land Area456 m2
Reimana Goodwin
New Home Consultant
Contact Us
Embed form to be added here.