Modern Double Storey Living
133/10 Horseshoe, Brymer Heights, Baverstock
Hamilton
3
3
2
0
1
$1,102,350*
*The price estimate includes GST and is an indication of the build cost and includes land. It should be used as a rough guide. Refer to the About Pricing page for more information. Images are artist's impression only. Regional variations in products and building requirements may apply.
Listing Code: WW-18978
Download Brochure
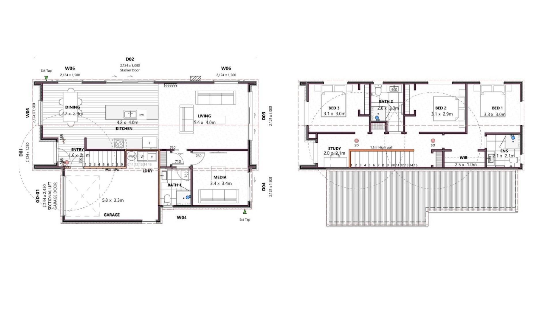
Floor Plan
Description
This well-planned double storey home offers 3 bedrooms, a dedicated media room and 3 bathrooms, including a convenient downstairs bathroom for guests or family use. The open plan living area provides an inviting space for dining and relaxation, while the master suite offers privacy and comfort. With an internal-access garage and a functional layout, this home suits modern living in the popular Baverstock neighbourhood.
Design Specifications
Ground Floor Area98.65 m2
First Floor Area69.53 m2
Floor Area168.18 m2
Total Area168.18 m2
Overall Size
Width (approximate)8.7 m
Length (approximate)13.8 m
Land
Land Area358 m2
Reimana Goodwin
New Home Consultant
Contact Us
Embed form to be added here.