King of the castle
18 Cumberland Crescent, Marsden Park, Stoke
Nelson
3
2
2
1
2
$1,087,850*
*The price estimate includes GST and is an indication of the build cost and includes land. It should be used as a rough guide. Refer to the About Pricing page for more information. Images are artist's impression only. Regional variations in products and building requirements may apply.
Listing Code: NE-19463
Download Brochure
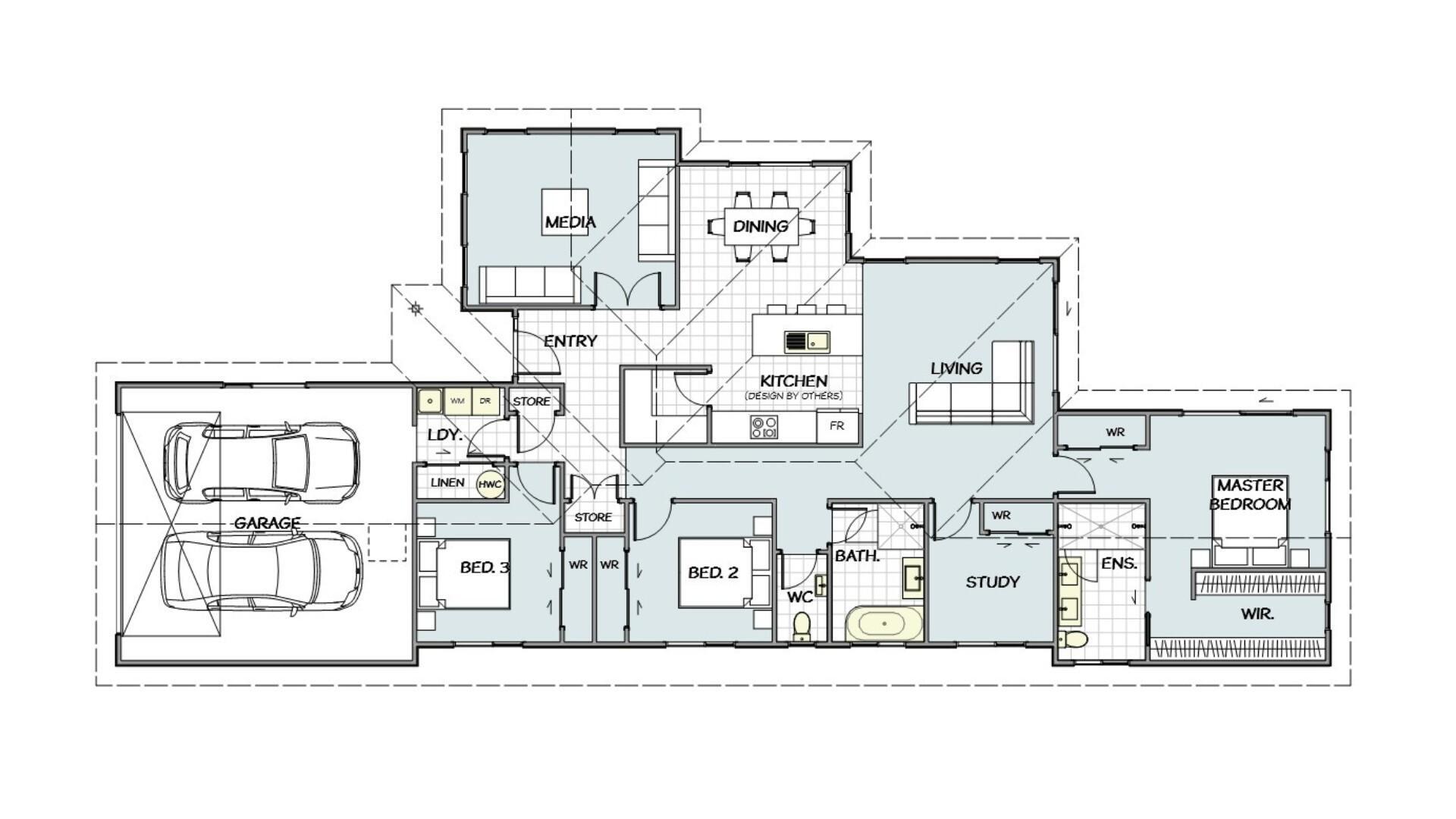
Floor Plan
Description
Discover modern comfort in this stylish home featuring 3 generous bedrooms, a dedicated study, and a separate laundry. Enjoy spacious open‑plan living that flows to a private media room, perfect for relaxation. The luxurious master suite boasts a stunning walk‑in robe and elegant ensuite. A beautifully designed home that blends space, style, and effortless living.
Design Specifications
Floor Area208 m2
Total Area208 m2
Overall Size
Width (approximate)11.6 m
Length (approximate)26.3 m
Land
Land Area1400 m2