First home or downsize - Turnkey Package
17 Cumberland Crescent, Marsden Park, Stoke
Nelson
2
2
1
0
1
$775,000*
*The price estimate includes GST and is an indication of the build cost and includes land. It should be used as a rough guide. Refer to the About Pricing page for more information. Images are artist's impression only. Regional variations in products and building requirements may apply.
Listing Code: NE-19585
Download Brochure
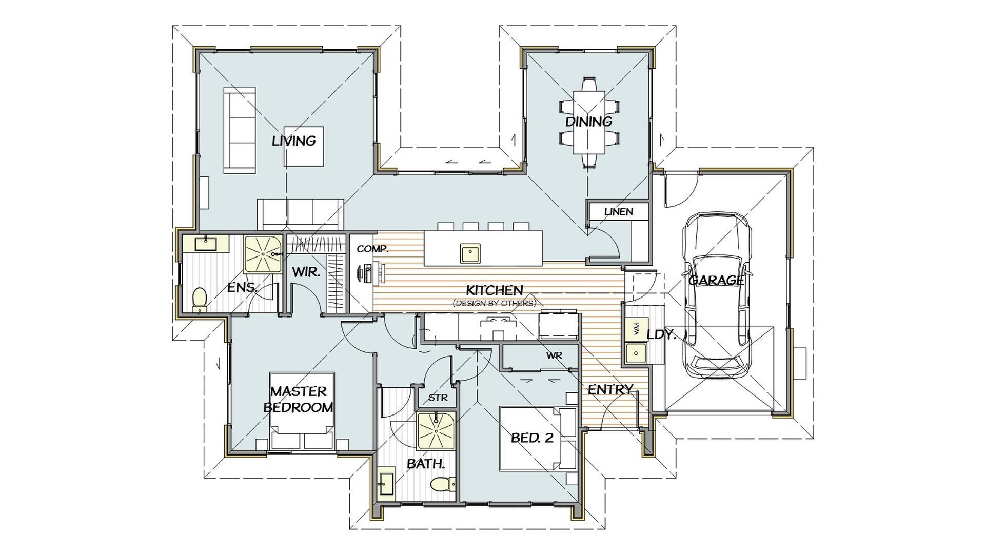
Floor Plan
Description
A bright, modern 2‑bed, 2‑bath home featuring F&P appliances, coloured tapware, open‑plan living with a study nook, and a sun‑filled layout. The main bedroom includes a generous walk‑in robe. Enjoy year‑round comfort with a driveway, heat pump, and full fencing. Conveniently close to local amenities, this home blends style, comfort, and everyday ease.
Design Specifications
Floor Area138.34 m2
Total Area138.34 m2
Overall Size
Width (approximate)15.1 m
Length (approximate)11.6 m
Land
Land Area375 m2