Comfort and Easy-Care Living - Turnkey Package
9 Cumberland Crescent, Marsden Park, Stoke
Nelson
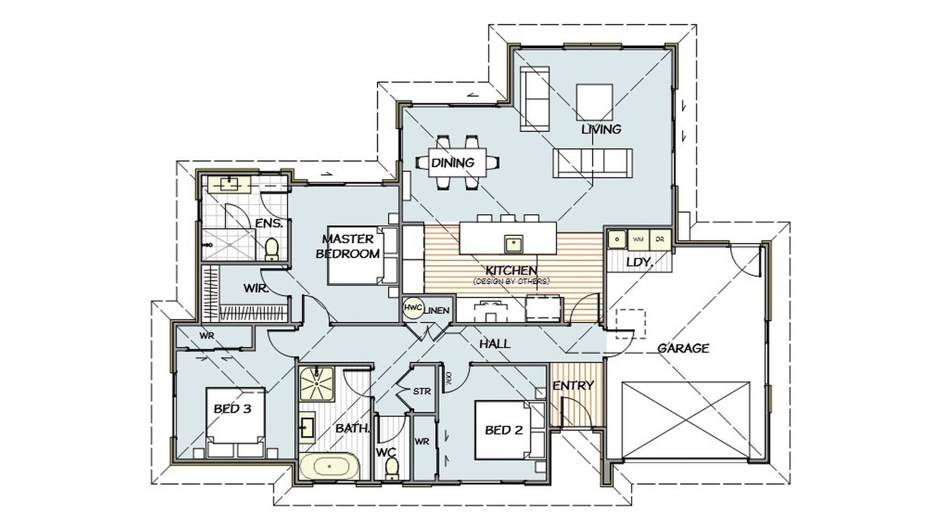
3
2
1
0
1
$795,000*
*The price estimate includes GST and is an indication of the build cost and includes land. It should be used as a rough guide. Refer to the About Pricing page for more information. Images are artist's impression only. Regional variations in products and building requirements may apply.
Listing Code: NE-19584
Download Brochure
Floor Plan
Description
A sunny three‑bed, two‑bath home with open‑plan living and peaceful hill views, designed to enjoy all‑day light. The kitchen, dining, and lounge flow together easily, creating a warm central space. Included are quality F&P appliances, coloured tapware, and the ability to personalise finishes inside/out. A heat pump, driveway, and full fencing add comfort, convenience, and privacy.
Design Specifications
Floor Area154.6 m2
Total Area154.6 m2
Overall Size
Width (approximate)16.6 m
Length (approximate)12.2 m
Land
Land Area395 m2