- Home
- Home designs
- Antipodean Luxury In The Country
Antipodean Luxury In The Country
Lot 2/231 Nixon Road, Taupaki
Rodney
4
2
1
0
2
$1,788,125*
*The price estimate includes GST and is an indication of the build cost and includes land. It should be used as a rough guide. Refer to the About Pricing page for more information. Images are artist's impression only. Regional variations in products and building requirements may apply.
Listing Code: RW-19041
Download Brochure
Floor Plan
-
4+
Description
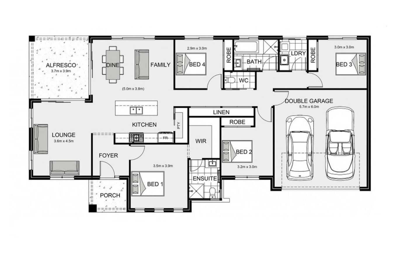
Upon entry, a private master suite with ensuite and walk-in robe leads into a spacious open-plan living area. The lounge, family, kitchen and dining spaces flow seamlessly to the large alfresco, creating flexible, entertaining zones. A wide frontage enhances street presence, while the slim design suits broad or corner lots. Maximised lighting and space, paired with a sleek modern form, gives the Rothbury a stylish yet effortless feel.
Design Specifications
Floor Area191 m2
Alfresco12.3 m2
Porches4.7 m2
Total Area208.0 m2
Overall Size
Width (approximate)10.9 m
Length (approximate)21.1 m
Land
Land Area8000 m2
Kathryn Cumberland
New Home Consultant
Contact Us
Embed form to be added here.